|| apartment building 10 units and 1 commercial unit | Kragujevac | project year 2023-24
site | Ulica Cara Lazara 8, 34000 Kragujevac
client | Royal Standard Radosavljević doo Kragujevac
architecture | URED Studio Belgrade
contractor | Gradmil doo Kragujevac
photography | Mladen Jovanović
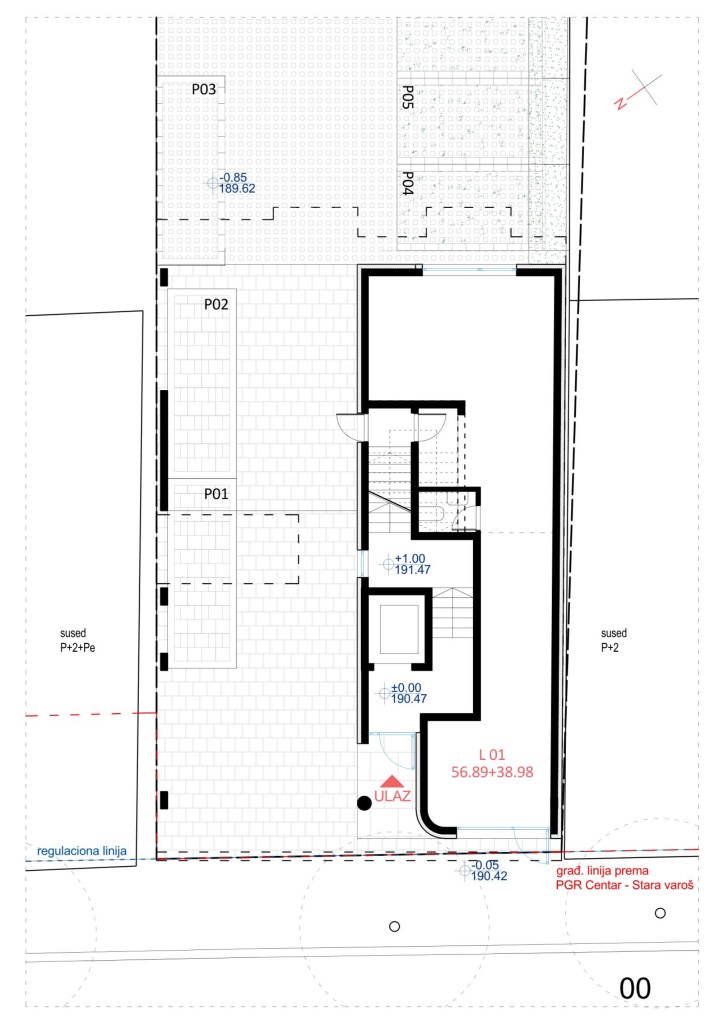
surface | 925,00 m2 gross surface on 461,00 m2 plot
status | built in 2025
awards | Architecture Madrid Awards 2025, Residential Architecture – SILVER
The CL8 Collective Housing, featuring ten functionally optimized apartments and one commercial unit, is located in the historic core of Kragujevac, in close proximity to the city’s main axis. The project represents a thoughtful response to its urban context: its human-scale proportions and carefully selected materials respect traditional façade composition principles, while its contemporary architectural expression establishes a dialogue between heritage and modernity. A key feature of the project is its monochromatic appearance, achieved through the synergy of mineral render, clinker tiles, grout, and aluminum windows, giving the building a unique visual coherence.
Sustainability and Urban Relevance
Ecological Approach – Thanks to efficient spatial organization, the building’s footprint is minimized, large permeable surfaces are provided for rainwater absorption, and the urban heat island effect is reduced through the choice of paving materials, the introduction of green spaces, and new tree plantings.
Compact Plot (under 600 m²) – CL8 is one of the last multi-family residential buildings of this size in Kragujevac, given recent changes in urban regulations that no longer permit such interventions in the city center.
Materiality and Façade Concept
The façade is clad in Rairies Montrieux clinker tiles, arranged in a distinctive rhythmic composition, while the ground floor, the recessed entrance area, and the sloped surfaces above the windows (which conceal the roller shutters) are made of mineral render. The monochromatic appearance is not merely an aesthetic choice but also reflects the intention to unify the building and its context, emphasizing the contrast between the smooth mineral render and the textured clinker tiles without visual fragmentation.
Functionality and Quality of Living
Though compact in size, the interiors of the apartments are optimized for maximum functionality and comfort, as confirmed by future residents, who highlight the natural lighting of service areas as one of the key advantages. Nearly all bathrooms, kitchens, and the central staircase have windows oriented toward the lightwell — a solution extremely rare in Kragujevac’s residential construction. This not only enhances the quality of life through natural light and ventilation but also reduces the need for artificial lighting, contributing to energy efficiency. Cross-ventilation and optimal sun exposure in all rooms further confirm the carefully planned spatial organization.
The relatively small floor area of the apartments increases their market accessibility, allowing a broader range of buyers to enjoy high-quality urban living. Additionally, the efficient distribution of space, without unnecessary circulation areas, ensures greater comfort with minimal compromise.
| srb
CL8 – Stambena zgrada u Kragujevcu | URED Studio
Stambena zgrada CL8, sa deset funkcionalno optimizovanih stanova i jednim lokalom, smeštena je u istorijskom jezgru Kragujevca, u neposrednoj blizini glavne gradske ose. Projekat predstavlja svestan odgovor na urbani kontekst: čovekomerna razmera i pažljivo odabrani materijali poštuju tradicionalne principe kompozicije fasade, dok savremeni arhitektonski izraz uspostavlja dijalog između nasleđa i savremenosti. Ključna karakteristika projekta je njegova monohromatska pojavnost, postignuta sinergijom boje mineralnog maltera, klinker listela, fuga i aluminijumske stolarije, što zgradi daje jedinstvenu vizuelnu prepoznatljivost.
Materijalizacija i koncept fasade
Fasada je obložena klinker listelama Rairies Montrieux, postavljenim u specifičnu ritmičku kompoziciju, dok su prizemlje, zalučeni deo ulaza i kosine iznad prozora (koje maskiraju roletne) izrađeni od mineralnog maltera. Monohromatski izgled nije samo estetska odluka, već i odraz namere da se jedinstvenom bojom uvežu zgrada i kontekst, ističući kontrast između glatkog mineralnog maltera i teksturisаних klinker listela bez vizuelne fragmentacije.
Održivost i urbanistička relevantnost
• Kompaktna parcela (manja od 600 m²) – CL8 predstavlja jednu od poslednjih zgrada višeporodičnog stanovanja ove veličine u Kragujevcu, s obzirom na promene u urbanističkim propisima koje više ne dozvoljavaju ovakve intervencije u centru grada.
• Ekološki pristup – Zahvaljujući efikasnoj prostornoj organizaciji, minimiziran je otisak objekta na zemljište, ostavljene su velike propusne površine za upijanje kišnice, a smanjen je efekat toplotnih ostrva kroz izbor materijala popločavanja, uvođenjem zelenih površina i novih zasada drveća.
Funkcionalnost i kvalitet stanovanja
Unutrašnjost stanova, iako kompaktnih dimenzija, optimizovana je za maksimalnu funkcionalnost i udobnost, što potvrđuju i budući stanari, koji ističu prirodno osvetljenje servisnih prostorija kao jednu od glavnih prednosti ovih stanova. Skoro sva kupatila, kuhinje i centralno stepenište imaju svoje prozore orijentisane prema svetlarniku – rešenje koje je izuzetno retko u kontekstu stambene izgradnje u Kragujevcu. Ovo ne samo da poboljšava kvalitet života kroz prirodno svetlo i provetravanje, već i smanjuje potrebu za veštačkim osvetljenjem, doprinoseći energetskoj efikasnosti. Unakrsno provetravanje i optimalna osunčanost svih prostorija dodatno potvrđuju pažljivo osmišljenu prostornu organizaciju.
Relativno mala kvadratura stanova povećava njihovu pristupačnost na tržištu, omogućavajući širem spektru kupaca da uživaju u kvalitetnom urbanom stanovanju. Dodatno, efikasna raspodela površina, bez nepotrebnih cirkulacionih zona, omogućava veći komfor bez puno kompromisa.






























You must be logged in to post a comment.