|| apartment building 9 units | Kragujevac | project year 2022-23
site | Ulica Kralja Milana IV 88, 34000 Kragujevac
client | Pepito invest doo Kragujevac
architecture | URED Studio Belgrade
contractor | Gradmil doo Kragujevac
photography | Mladen Jovanović
surface | 788,00 m2 gross surface on plot 492,00 m2
status | built in 2024
awards |
– Awarded shortlist for the 2024 SHARE Architecture Awards for Central and Southeast Europe, Athens 2024
text: Stevan Gojkov
This is one of the last examples of the construction of small-scale residential buildings in this part of the city on Lepenica, because the plan is drastically changing.
Completed in 2024 for the investor Pepito invest d.o.o. from Kragujevac, with its qualities, this work was exhibited at the 46th Salon of Architecture, in the Museum of Applied Art in Belgrade.
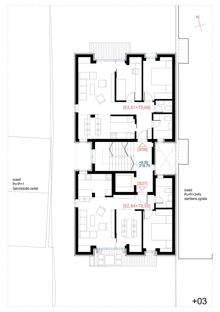
The residential building at Kralja Milana Street number 88 in Kragujevac is located on the border of the zone of row houses and the zone of public use, within which is the plot of the Gerontological Centre, which conditioned the formation of the building in an interrupted row.
The width of the front was used to design the entrance to the building on the main facade, separated from the carriageway, materialized from clinker brick elements on a flat slab that extends into the interior space.
The terracotta-coloured ceilings and projected lighting give the entrance area a character that is important for the perceived quality of housing, the architects explain.
The facade of the main body has materialized using the technique of brushed plaster, which achieves the effect of rustic vertical grooves with smooth breaks at the level of the mezzanine structure. By pressing the facade openings into the plane of the facade, the extensions of the terraces and the perceived massiveness of the facade walls are obtained.
The integrally designed planters and the fence in their parts create zones of greater privacy and, against the massiveness of the facade walls, give the effect of refinement and pronounced colour, while at the same time discreetly fitting into the context.
The roof terrace was conceived as a safe space away from the street, which would have the potential of a summer garden for organizing children’s birthdays, celebrations, and other social needs of the tenants, as an extension of the space of a compact apartment and compensation for the lack of a better organized yard due to the limited number of parking spaces.
Urban analysis of building rules defined two variants of solutions:
Variant 1: Using the parameters for an interrupted row of single-family houses, a more favourable solution of a more compact residential building with main orientations towards the street and its own yard, with an entrance formed on the main facade of the building, is obtained.
Variant 2: Using the parameters for a broken row of multi-family housing, the distance from the Gerontological Centre would have to be much greater, which results in a building with a very narrow front with the main orientations towards the Gerontological Centre building and its yard.
Variant 1 was accepted as a more favourable solution both for the tenants of the future building and for the users of the gerontological centre.
Thanks to the compact shape, rational apartments were designed with secondary openings on the side facade and towards the skylights, which provides good lighting and ventilation.
The dimensions and proportions of the apartments enabled the scalability of the residential structure and the possibility of easily creating an additional room within the same given square footage.
According to the latest changes to the planning documents in Kragujevac, it will no longer be possible to design residential buildings of this scale on plots of land smaller than 6 acres until further notice, but the construction of family houses or residential buildings with more than 18 to 20 apartments and much higher floors is encouraged.
In this sense, this is one of the last examples of the construction of residential buildings on a smaller scale and the realization of the comfort provided by a residential community with less than ten residential units.
| srb
Autor teksta: Stevan Gojkov
Ovo je jedan od poslednjih primera izgradnje stambenih zgrada manje razmere u ovom delu grada na Lepenici jer se plan drastično menja.
Završen 2024. godine za investitora Pepito invest d.o.o. iz Kragujevca, ovaj projekat se svojim kvalitetima izborio za učešće na izložbi 46. Salona arhitekture, u Muzeju primenjene umetnosti u Beogradu.
Stambena zgrada u Ulici Kralja Milana broj 88 u Kragujevcu nalazi se na granici zone stambenih objekata u nizu i zone javnih namena u okviru koje se nalazi parcela Gerontološkog centra čime je uslovljeno formiranje objekta u prekinutom nizu.
Urbanističkom analizom pravila građenja definisane su dve varijante rešenja:
Varijanta 1: Koristeći se parametrima za prekinuti niz objekata porodičnog stanovanja, dobija se povoljnije rešenje stambenog objekta kompaktnijeg oblika sa glavnim orijentacijama prema ulici i sopstvenom dvorištu, sa formiranim ulazom na glavnoj fasadi objekta.
Varijanta 2: Koristeći se parametrima za prekinuti niz višeporodičnog stanovanja, udaljenje od Gerontološkog centra bi moralo biti mnogo veće, čime se dobija objekat veoma uskog fronta sa glavnim orijentacijama prema objektu Gerontološkog centra i njegovom dvorištu.
Varijanta 1 je prihvaćena kao povoljnije rešenje i za stanare buduće zgrade i za korisnike gerontološkog centra.
Zahvaljujući kompaktnom obliku, projektovani su racionalni stanovi sa sekundarnim otvorima na bočnoj fasadi i prema svetlarnicima, čime se dobija dobra osvetljenost i provetrenost.
Dimenzije i proporcije stanova omogućili su skalabilnost stambene strukture i mogućnost lakog formiranja dodatne sobe u okviru iste zadate kvadrature.
Širina fronta iskorišćena je da se na glavnoj fasadi isprojektuje ulaz u objekat, odvojen od kolskog prolaza, u materijalizaciji od klinker opekarskih elemenata na ravnom slogu koji se uvlači u unutrašnji prostor.
Plafonima u boji terakote i projektovanim osvetljenjem data je karakterna crta ulaznoj zoni koja je važna za percipirani kvalitet stanovanja, objašnjavaju arhitekte.
Fasada glavnog korpusa materijalizovana je tehnikom maltera obrađenog češljanjem kojim se postiže efekat rustičnih vertikalnih kanelura sa uglađenim prekidima u nivou međuspratne konstrukcije. Utiskivanjem fasadnih otvora u ravan fasade dobijaju se proširenja terasa i percipirana masivnost fasadnih zidova.
Integralno projektovane žardinjere i ograda u svojim delovima stvaraju zone veće privatnosti i nasuprot masivnosti fasadnih zidova daju efekat prefinjenosti i izraženog kolorita, dok se istovremeno diskretno uklapa u kontekst.
Krovna terasa je zamišljena kao bezbedan prostor udaljen od ulice, koji bi imao potencijal letnje bašte za organizovanje dečijih rođendana, proslava i drugih društvenih potreba stanara, kao ekstenzija prostora kompaktnog stana i kompenzacija za nedostatak kvalitetnije organizovanog dvorišta zbog uslovljenog broja parking mesta.
Prema poslednjim izmenama planskih dokumenata u Kragujevcu, na parcelama manjim od 6 ari više neće biti moguće projektovati stambene zgrade ove razmere do daljnjeg, već se podstiče gradnja porodičnih kuća ili stambenih zgrada sa više od 18 do 20 stanova i mnogo veće spratnosti.
U tom smislu, ovo je jedan od poslednjih primera izgradnje stambenih zgrada manje razmere i ostvarivanja komfora koji pruža stambena zajednica sa manje od deset stambenih jedinica.





































You must be logged in to post a comment.