|| Adaptive Reuse and Interior Design of SCGM doo Headquarters in Kragujevac, Serbia
| project year 2017
site | 19. Oktobar Street 2, 34000 Kragujevac
client | SCGM doo
architecture | URED Studio Belgrade
landscape architecture | Gorovel, Sombor
contractor | Slavisa Staletović
light design | Kjumi dsign, Ailedis doo, Smederevo
furniture | Woodex Kragujevac; Feydom Concept Novi Sad
floors | Ragno Marazzi Group S.r.l. a socio unico; Tarkett doo Bačka Palanka
gross surface | offices 600m2 production 3600 m2
status | completed
photography | Relja Ivanić
awards |
– BIG SEE INTERIOR DESIGN AWARD 2019 WINNER, Ljubljana, Slovenia
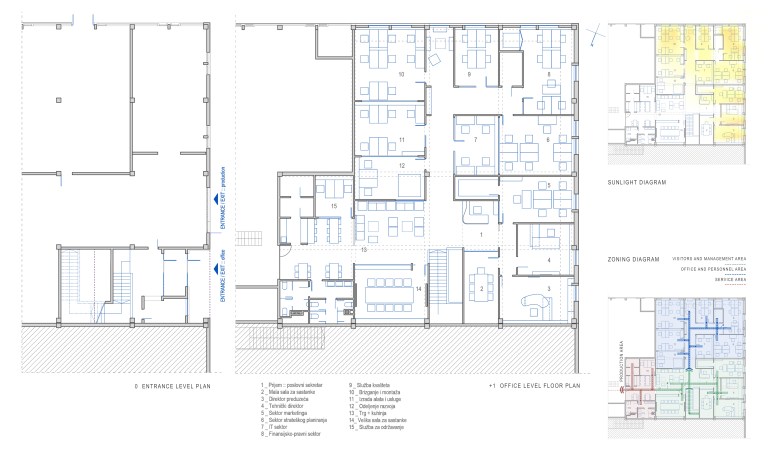
The former production hall of a textile factory is transformed through the adaptive reuse and interior design for the needs of the new owner, company SCGM d.o.o. which specializes in plastic injection molding, prototype design, construction and tool making. The production plant of the company extends over 3600 m2 of this hall, and the office space headquarters is about 600 m2. Functional and aesthetic delineation of the business part from the production was achieved by introducing a new entrance zone and the steps that penetrate deep into the building. The interior of the office space is conceived by a clear separation into two zones, one is available for visitors, and the other is exclusively for employees. The project brief was to create a comfortable and representative space to welcome large international clients from the industry, but with a budget that is more appropriate for local economic conditions. Almost all the furniture, lighting fixtures, wooden partitions and even interior doors are custom made by a local company. The skills of local craftsmen involved in this project inspire the creativity of the company in which the core values are design and manufacturing processes.
The specificity of the projects is that it is an adaptive reuse of the industrial building with a higher ceiling than it would be usual for an office space, which also allowed deeper penetration of natural light into space. With the alternating positions of the glass and wall partitions, we opened the views that also penetrate through different layers of spaces and creating a pleasant space with simple but effective materials while we kept the budget at a minimum.













































You must be logged in to post a comment.